آموزش سیم کشی ساختمان
سیم کشی ساختمان (Electrical Wiring) مجموعه عملیاتی است که ما را قادر میکند از برق شهری به شکلی ایمن برای هروسیله برقیمان استفاده کنیم. برخلاف نام مصطلح آن، برق کشی ساختمان به وسایل برقی محدود نمیشود و برای تلفن، آنتن و ... هم ضروری است.
به طور خلاصه، مراحل سیم کشی شامل نقشهکشی برق ساختمان، رسم خط ترازِ کلیدها و پریزها، کندهکاریِ جای لوله و قوطیهای برق، قوطیگذاری و لولهگذاری، برق کشی و کشیدن سیمها و نهایتا سربندی آنهاست. در ادامه اصول و مراحل سیم کشی ساختمان را گام به گام با توضیحات کامل بررسی میکنیم.
آموزش سیم کشی ساختمان؛ پیشنیازها
پیش از اینکه سراغ مراحل اینکار و استانداردهای مهم آن برویم، خوب است یکسری مفهومها و موضوعها را مرور کنیم. با انواع سیم کشی ساختمان آغاز میکنیم:
انواع سیم کشی ساختمان
اولین موضوع روشهای مختلف برای برق کشی یک ساختمان وجود دارد. با توجه به کاربرد، نوع پروژه و قدمت ساختمان، اینکار به دو روش روکار و توکار انجام میشود. خود روش توکار هم میتواند به شکلهای مختلف و از طرق جعبه فیوز، جعبه تقسیم، و کلید و پریز انجام شود.
سیم کشی ساختمان به روش روکار
در این روش سیمها و اتصالاتی برای رساندن برق به کلیدها، پریزها و ... لازماند، به جای اینکه داخل دیوارها کار شوند از روی آنها عبور داده میشوند. برای اینکه این اتفاق کمتر زیبایی فضا را تحت تاثیر قرار دهد، داکت کشی و ترانکینگ انجام میشود.
البته این محافظهای پلاستیکی صرفا جنبه زیباییشناسی ندارند، آنها از سیمها و اتصالات در برابر حرارت، رطوبت و شوک فیزیکی محفاظت میکنند و مانع از تماس ناخودآگاه ما با آنها هم میشوند.
برق کشی ساختمان به روش توکار در برخی شرایط گزینه مناسبتری است، برای مثال:
- وقتی لازم است خروجی جدیدی اضافه شود، اما (به هردلیلی) قصد تخریب دیوار را ندارید. مثلا دیوار از مصالح سختی مانند بتن ساخته شده که هم تخریب آن چالشبرانگیز است، هم میتواند استحکام سازه را به خطر بیندازد.
- وقتی صرفهجویی در هزینههای سیم کشی و کابل کشی از اولویتهای پروژه است.
- برای محیطهای غیر مسکونی و به ویژه صنعتی که زیبایی فضا اهمیت بالایی ندارد.
مزایا و معایب سیم کشی روکار
در معرض دید بودن و کاهش زیبایی شاید مهمترین ایراد این روش باشد. روکار بودن سیمها بخش کم یا زیادی از دیوارها را هم اشغال میکند. با این وجود، این روش مزایای متعدد و مهمی دارد، از جمله:
- در دسترس بودن سیمهای برق (که عیبیابی و تعمیرات را بسیار ساده میکند)
- حفاظت از سیمها در برابر آسیب و کاهش احتمال برقگرفتگی به دلیل استفاده از داکت و ترانکینگ
- عدم نیاز به شیارزنی
- کاهش هزینهها و افزایش سرعت اجرا
اصول سیم کشی روکار
مهمترین اصول سیم کشی ساختمان (که در ادامه بررسی میشوند) اینجا هم صادق هستند. به همین خاطر اینجا تنها نکان مربوط به داکتکشی را مرور میکنیم:
- محل نصب هرداکت باید حداقل 6 میلیمتر از سقف و دیوار فاصله داشته باشد.
- برای محکم کردن بست داکتها روی دیوار باید از پیچ و رول پلاک استفاده کرد.
- جنس پیچها باید با توجه جنس دیوار انتخاب شود. مثلا پیچهای فولادی برای محکم کردن بست داکتها روی دیوار فلزی مناسب هستند.
- فاصله بستها از یکدیگر باید نه خیلی زیاد و نه خیلی کم باشد.
- اگر به جای داکت PVC از لوله فولادی سیاه برای پوشاندن سیم کشی استفاده شود، باید روی لولهها و بخشهای دیگر ضد زنگ زد و بعد رنگآمیزیشان کرد.

سیم کشی ساختمان به روش توکار
برخلاف روش قبل، اینجا تمام سیمها و اتصالات داخل لولههای خرطومی و PVC و سپس درون دیوارها قرار میگیرند، یا مستقیما از زیر گچ یا سیمان عبور داده میشوند. به این ترتیب، زیباییِ نهایی کار اصلا تحت تاثیر قرار نمیگیرد.
به دلیل امکان استفاده از سیمها و اتصالات معمولی تا نمونهها مقاوم و چندلایه، برق کشی توکار بسیار منعطف است و برای انواع پروژههای اداری، تجاری و ... کاربرد دارد، به ویژه برای محیطهای مسکونی که زیبایی و امنیت بسیار مهم است.
انواع سیم کشی ساختمان به روش توکار در سه گروه قرار میگیرد:
با جعبه فیوز
در این روش جدید و رایح، برق هربخش از ساختمان به صورت مجزا اجرا میشود. از جعبه فیوز (یا اصطلاحا تابلو) برای توزیع متناسب برق به بخشهای مختلف و مدیریت آن استفاده میشود. برای اینکار ابتدا سیمها از داخل جعبه فیوز عبور داده شده، و بر اساس نوع و میزان نیاز به جریان الکتریکی اجرا میشوند.
در صورت برق کشی ساختمان با جعبه فیوز، باید به دونکته برای نصب آنها توجه کرد:
- جعبه فیوز باید جایی نصب شود که به تابلوی مرکزی برق ساختمان دسترسی داشته باشد.
- محل نصب جعبه فیوز باید دسترسی راحت برای تغییرات و تعمیرات را تضمین کند.
با جعبه تقسیم
به دلیل وجود لوازم پیشرفتهتر و سادهتر بودن عیبیابی روشهای دیگر، سیم کشی با جعبه یا قوطی تقسیم تبدیل روشی قدیمی محسوب میشود، اما هنوز هم کاربرد دارد.
در این روش سیم کشی از داخل لولههای برق به شکل افقی (بالای دیوارها) عبور داده میشود. سپس سیمها درون جعبههای تقسیم (که بالای کلید و پریزها و به فاصله 30-40 سانتیمتری از سقف نصب میشوند) تقسیم میشوند.
با جعبه کلید و پریز
در این روش به جای جعبه تقسیم، از قوطی یا جعبه کلید و پریز استفاده میشود. فضایی متناسب با اندازه کلید و پریز مشخص میشود تا سیمها بدون مشکل درون جعبه قرار بگیرند. عمق جایگذاری این جعبهها در دیوار هم پیشتر توسط استانداردهای اینکار مشخص شده است.
بین انواع سیم کشی ساختمان، این گزینه مزایای جالب توجهی دارد؛ مثلا به دلیل قرار گرفتن محفظه درون دیوار زیبایی فضا را به خطر نمیاندازد. همچنین، برای اعمال تغییرات و عیبیابی کافیست پیچهای کلید و پریز را باز و رویه آنها را جدا کرد تا به سیمها دسترسی پیدا کنیم.
برق کشی ساختمان با این قوطیها چندنکته مهم دارد، از جمله اینکه:
- در این روشِ سیم کشی، سیمهای روشنایی جدا از سیمهای پریز برق اجرا میشوند.
- در صورت استفاده از کلید و پریز تکپل یا تکخانه، باید قوطیها را هنگام نصب با رابط به یکدیگر وصل کرد. اما در صورت استفاده از نمونههای چندخانه، قوطیها بدون رابط به هم وصل میشوند.

سیمهای مناسب برای برق کشی هربخش
یکی از مهمترین بخشهای آموزش سیم کشی ساختمان این است که فرد بداند برای هرقسمت از ساختمان از چه سیمی و با چه شمارهای استفاده کند. تمام اینها در ضوابط و مقررات ساختمانی مشخص شدهاند که در ادامه مهمترینها را کوتاه مرور میکنیم:
- کابل اصلی (که برق را از کنتور به جعبه فیوز هرواحد میبرد):
- کابل 3 رشته شماره 6 برای کنتور تکفاز 32 آمپر
- کابل 5 رشته شماره 4 برای کنتور تکفاز 15 آمپر
- کابل 5 رشته شماره 4 برای کنتور تکفاز 25 آمپر
- کابل 5 رشته شماره 6 برای کنتور تکفاز 32 آمپر
- کابل 3 رشته شماره 10 برای کنتور تکفاز 50 آمپر
- کابل 5 رشته شماره 16 برای کنتور تکفاز 50 آمپر
- روشناییها (لامپ، لوستر، هالوژن و ...): سیم3 رشته شماره ۱٫۵. همچنین، بهتر است رنگ سیمهای ارتباطی و برگشتی متفاوت باشد تا بتوان هنگام نصب کلیدها، سیمها را راحتتر تشخیص داد. مثلا سیمهای ارتباطی قرمز و آبی باشند و سیمهای برگشتی قهوهای و آبی.
- پریزها (در آشپزخانه، اتاق خواب، هال یا ...): سیم 3 رشته شماره ۲٫۵
- سیم آیفون: سیم ۸ رشته (۴ زوج) شماره 0.6
- سیم آنتن: کابل کواسیال ۷۵ اهم
- کولر آبی:
- سیمی که از کولر به پشت بام میرود: کابل 4 رشته مفتولی، و کابل 5 رشته مفتولی اگر چاه ارت در ساختمان اجرا شده (چون یک رشته سیم اضافی برای ارت لازم است که به بدنه کولر وصل میشود)
- سیمی که از کلید کولر تا جعبه فیوز میرود: سیم شماره ۲٫۵ (هرچند سیم شماره ۱٫۵ هم جوابگوست)
- کولر گازی: سیم شماره 4، بدون اینکه تکهتکه یا چسبخورده باشد
- اعلان حریقها: سیم شماره ۱٫۵ (در تمام قسمتها)
- سیم تلفن: سیم 4 رشته (2 زوج). به این ترتیب اگر صاحبخانه بخواهد دوخط تلفن داشته باشد، مشکلی نخواهد داشت. سیمها باید فویلدار باشند تا خط تلفن کمتر نویز بگیرد.
ابزارها و وسایل لازم برای سیم کشی
«وسایل لازم برای سیم کشی ساختمان» را پیشتر به طور کامل معرفی کردهایم؛ و اینجا تنها به معرفی مختصر آنها میپردازیم. جعبهابزار یک برقکار شامل چنین وسایلی میشود:
- انبردست؛ برای قطع کردن سیمهای برق و همچنین نگه داشتن، خم کردن و پیچیدن آنها
- سیمچین؛ برای قطع کردن سیمها و همچنین کابلهای برق. از این ابزار بعضا برای لخت کردن سیمها هم استفاده میشود؛ که به دلیل احتمال آسیب دیدن سیم توصیه نمیشود
- سیم لختکن؛ برای برداشتن پوشش سیمها بدون آسیب رساندن به آنها به منظور برقراری اتصال بین دو یا چندسیم
- دمباریک؛ برای قطع کردن، خم کردن و به هم پیچیدن سیمها وقتی جا برای دست و ابزارهای دیگر کافی نباشد
- متر؛ برای اندازهگیری دقیق فواصل که بارها در روند سیم کشی ساختمان لازم است
- تراز؛ در مدلهای لیزری یا لولهای برای نصب صحیح کلیدها و پریزها و ... در محل خود
- مولتیمتر؛ برای اندازهگیری ولتاژ، جریان برق و مقاومت الکتریکی، برای بررسی و پیدا کردن نوسانات برق و منبع آن
- فازمتر؛ برای بررسی وجود جریان در سیمها
- ترمینال بلوک؛ برای برقراری ارتباط بین سیمها به کمک پیچ در تابلوی توزیع برق
- بوبین (سیمپیچ الکترومغناطیسی)؛ برای ذخیره برق در مدار هنگامی که جریان الکتریکی کاهش یافته است
- بوشن؛ برای اتصال لوله به بخشهای مختلف مانند جعبه تقسیم و تابلوی فیوز یا اتصال دو لوله با قطر یکسان به یکدیگر
- چسب برق؛ برای برقراری اتصال بین سیمها و عایق کردن آنها
- دستگاه تشخیص ولتاژ (تستر ولتاژ)؛ در مدلهای دستی و اتوماتیک برای تشخیص و اندازهگیری ولتاژ و حفظ ایمنی افراد
- انواع فنر سیم کشی؛ برای عبور دادن سیمهای برق از لولههای کارشده درون دیوارها
- انواع خمکن لوله برق؛ برای خم کردن لولهها وقتی باید تغییر زاویه دهند
- سایر وسایل؛ شامل انواع پیچگوشتی عایق، دریل، بست سیم و کابل قیچی کابلبری، چراغ قوه، دستکش عایق و لباس کار ضد حریق

مراحل سیم کشی ساختمان
بسته به نوع پروژه و نیازهای آن، برق کشی یک واحد در سه مرحله از ساخت و ساز (هنگام ساخت اجزای بنا مانند دیوار، هنگام نازککاری یا پس از نقاشی و کفسازی) انجامپذیر است، و طبق مراحل زیر جلو میرود:
نقشهکشی برق ساختمان
ابتدا باید نقشه سیم کشی واحد زیر نظر مهندس ناظر و طبق مقررات ملی ساختمان (مبحث 13) طراحی شود. هدف ارائه تمام جزئیاتِ سیستم الکتریکی یک واحد (مانند روشناییها، کلید و پریز، آنتن مرکزی، کولر آبی یا گازی، جعبه تقسیم، جعبه فیوز، برق اضطراری، اعلام حریق، دوربین مداربسته، آیفون، تلفن و ...) و موقعیت آنهاست.
برقکار اطلاعات این نقشه را میخواند و کار خود را با توجه به آن جلو میبرد. مشخصا هرچه این نقشه حرفهایتر طراحی شود، نتیجه کار سطح بالاتر خواهد بود و سرعت پروژه هم افزایش خواهد یافت.
بسته به تجهیزات و تاسیسات برقی ساختمان، نقشه برق آن به صورت شماتیکی، گرافیکی و گزارشی طراحی میشود. چون مورد اول از همه رایجتر است، آن را بررسی میکنیم.
یک نقشه کامل و اصولی چنین مواردی را شامل میشود:
نقشه پلانها
در مبحث نقشهکشی برق، چندنقشه پلان داریم. دلیل طراحی چندپلان این است که ترسیم تمام المانها و جزئیات روی یک پلان طرح را بسیار شلوغ میکند و منجر به اشتباه در نقشهخوانی میشود. این پلانها عبارتاند از:
پلان تجهیزات
که در آن نحوه چیدمان وسایل برقی (و غیر برقی) تعیین میشود، تا تکلیف برقرسانی به آنها مشخص شود. مثلا اگر قرار است در فلان نقطه تلویزیون قرار بگیرد، باید پریز برق و آنتن برای آن پیشبینی شود و چنین مواردی. یا اگر در نقطهای قرار است تخت قرار بگیرد، حتما یکی-دو پریز برای آن در نظر گرفته شود.
به این ترتیب برای سیم کشی ساختمان به شکلی حرفهای، پلان معماری شامل آشپزخانه، اتاق خواب، سرویس بهداشتی و ... با چیدمان تجهیزات مشخص میشود.
علاوه بر محل قرارگیری کمد دیواری، تخت خواب، روشویی، توالت، دوش، اجاق گاز، سینک ظرفشویی، ماشین لباسشویی و ... در قسمتهای مختلف یک واحد، شرایطی مانند خشک یا مرطوب بودن نقاط هم در چیدمان تجهیزات الکتریکی و نهایتا برق کشی ساختمان بسیار مهم است.
پلان روشنایی
در این پلان ابتدا محل قرارگیری وسایل الکتریکی مانند کلیدها و چراغها، و سپس ارتباط آنها با یکدیگر و با تابلوی تقسیم مشخص میشود. جایگذاری هریک از این موارد نکات و اصولی دارد، برای مثال:
- بهترین محل برای روشناییهای سقفی در هرفضا وسط آنهاست که با ترسیم قطرها مشخص میشود. اگر فضا L مانند باشد، باید با آن به شکل دو مربع مجزا رفتار شود.
- هنگام چیدمان چراغها باید به شدت روشنایی لازم (با واحد "لوکس") برای هراتاق هم توجه کرد. مثلا شدت روشنایی مناسب برای پذیرایی و آشپزخانه 200 لوکس است، برای اتاق خواب 100 لوکس و ... این موضوع به ویژه برای سیم کشی مثلا آشپزخانه بسیار مهم است؛ چون این فضا لزوما تنها روشنایی سفقی ندارد و دارای روشنایی دیواری، هالوژن و غیره هم میشود.
- اگر در جایی از نقشه ستون وجود داشته باشد، نمیتوان برق کشی را از درون آن عبور داد، روی آن کلیدی نصب کرد یا ...
- در اتاق خوابها، روشنایی سقفی با کلید کنار درب روشن و با کلید کنار تخت خاموش میشود.
- چون روشناییهای سقفی هال و پذیرایی معمولا با لوستر اجرا میشود و لوسترها هم معمولا دوگروه لامپ دارند، باید برای آنها کلید دوپل در نظر گرفت. برای نورهای مخفی زیر سقف کلید یکپل کفایت میکند.
- کلید روشناییهایی سرویسهای بهداشتی هم نزدیک درب نصب میشوند. خود روشناییها هم باید با درجه حفاظت IP44 یا بیشتر باشند تا پاشش آب آسیبی به آنها نرساند.
پس از جایگذاری این وسایل، برای هرفضا در واحد مداربندی انجام میشود. منظور از سیم کشی ساختمان اتصال مجموعهای از تجهیزات الکتریکی به یکدیگر است، طوری که یک منبع واحد به آنها برق برساند و وسایل حفاظتی مشخصی داشته باشند.
مدارهای پایه در هرفضا (اتاق خواب، راهرو، ورودی واحد، سرویسهای بهداشتی، حیاط و ...) با رنگ سبز مشخص میشوند. سپس، واسطههایی صورتیرنگ کلیدهای مدارهای پایه را به هم وصل میکند و در آخر با یک پیکان به تابلو وصل میشوند.
در آموزش سیم کشی ساختمان، مداربندیها هم نکات متعددی دارند که برای طولانی نشدن بحث به آنها نمیپردازیم. برای بررسی بیشتر میتوانید به طور جداگانه جستوجو کنید یا مبحث 13 مقررات ملی ساختمان را مطالعه کنید.

پلان پریز برق
این پلان جایگذاری پریزها را نشان میدهد. چیزی که در این مرحله از برق کشی بسیار کمککننده ظاهر میشود، پلان تجهیزات است. وقتی محل قرارگیری وسایل برقی (و غیر برقی) مشخص باشد، به راحتی میتوان محل و تعداد پریزهای لازم را محاسبه کرد.
در همه فضاها، به جز آشپزخانه و سرویس بهداشتی، پریزها باید در نقاطی نصب شوند که فاصلهشان از رأسهای اطراف بیشتر از ۵/۱ متر نباشد؛ بدون اینکه درها و پنجرههای شروعشده از کف در این اندازهگیری محاسبه شوند.
در آخر، پریزهای برق مداربندی میشوند. مدار پریز نباید واسطه سهتایی داشته باشد و تنها باید به پریز بعد از خود برق برساند (مشابه مدار روشنایی). ادامه پیدا کردن مدار پریز برق هم فقط از انتهای آن ممکن است.
تمام پریزها، از سهفاز تا تکفاز هم باید به سیم ارت مجهز باشند. برای بررسی نکات تکمیلی به مبحث 13 مقررات ملی ساختمان مراجعه کنید.
پلان پریز تلفن و آنتن
برخلاف پلانهای پیشین، این پلان و مدار آن در سیم کشی ساختمان یک سیستم جریان ضعیف محسوب میشود. و طبق مقررات ملی ساختمان، مدارهای سیستمهای جریان ضعیف باید به طور جداگانه رسم شود.
چون تلفنها جدید همه یک گوشی شارژی هم دارند، پریزهای تلفن کنار حداقل یک پریز برق قرار میگیرند. توصیه میشود که یک پریز تلفن هم نزدیک به پیشخوان آشپزخانه پیشبینی شود.
مدار پریز تلفن در هرطبقه به جعبه تقسیم در راهپله همان طبقه وصل میشود. آن جعبه تقسیم هم به جعبه تقسیم طبقه پایین و نهایتا جعبه تقسیم طبقه اول به جعبه تقسیم ترمینال اصلی وصل میشود.
وضعیت پریز آنتن در برق کشی ساختمان هم در همین پلان رسم شده و با توجه به محل تلویزیون مشخص میشود.
نمودار تابلوها
در ادامه مراحل سیم کشی و نقشهکشی برق ساختمان به نمودار تابلوها میرسیم. برقی که از کابلهای خارج از واحد به تابلوی اصلی ساختمان (تابلوی کنتور) میرسد، معمولا با تابلوهای تقسیم و تابلوهای اشتراکی بین طبقات و واحدهای مختلف توزیع میشود.
پس در یک ساختمان مسکونی از سه نوع تابلو برق استفاده میشود. آنها نقشه شماتیک یکسانی دارند، و معمولا نمودارشان به صورت تکخطی رسم شده و با علایم و ارقام کنار هرعنصر مدار تکمیل میشود:
- تابلوی اصلی یا کنتور (MDP): تعداد کنتورها در این تابلو با توجه به تعداد واحدها و مصرفشان مشخص میشود. این تابلو در ورودی ساختمان نصب میشود، و مامور شرکت برق مصرف هرواحد را از روی آن میخواند.
- تابلوی اشتراکی (GP): این تابلو برای مصارف اشتراکی بین تمام واحدهای یک ساختمان است و همه این مصرفکنندهها از آن تغذیه میشوند؛ منظور مصارفی مانند روشنایی راهپلهها و پارکینگ، آیفون، آنتن مرکزی، آسانسور و ... است. این تابلو در دیوار راهپله یا پیلوت ساختمان نصب میشود.
- تابلوی تقسیم (DP): این تابلو برای مدارهای روشنایی، کلیدها، پریزها و ... در یک واحد مسکونی در نظر گرفته میشود. مزیت این تابلوها در سیم کشی این است که در صورت بروز اشکال تنها مسیری که اتصالی کرده از مدار خارج میشود و سایر بخشهای ساختمان بدون برق نمیماند. این تابلو در نقشه پلان پریزها رسم شده، و در ورودی آپارتمان یا آشپزخانه نصب میشود.
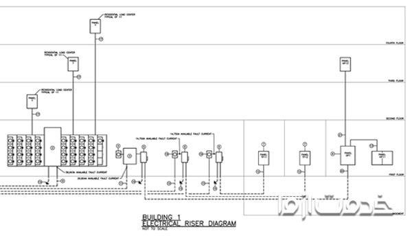
نمودارهای رایزر
منظور از رایزر (Riser) مسیرهای عمودی و افقی حرکت تاسیسات است. در بحث اصول سیم کشی ساختمان، حجم زیادی از این اتفاق و حرکتهای عمودی/افقی در راهپلهها اتفاق میافتد. چون نمیتوان این مدارها و ارتباطشان را به خوبی روی پلانها نشان داد، از نمودار رایزر (رایزر دیاگرام) استفاده میکنیم.
مشابه نقشه پلانها، نمودارهای رایزر هم شامل چند مدار میشوند:
- نمودار رایزر آنتن مرکزی؛ برای نمایش درست ارتباط وسایل آنتن مرکزی با یکدیگر در پلان پلهها
- نمودار رایزر سیستم تلفن؛ برای نمایش ارتباط جعبه تقسیمهای تلفن از همکف و بین طبقات
- نمودار رایزر سیستم آیفون؛ برای نمایش مسیرهای مجزای گوشیها و رسیدن آنها به همکف
- نمودار رایزر روشنایی راهپله؛ برای نمایش ارتباط برق کشی بین تجهیزاتِ هرطبقه
- نمودار رایزر تابلوهای توزیع و تقسیم برق؛ که توزیع برق و ارتباط تابلوها را در کل ساختمان نشان میدهد، و شامل تمام سه نوع تابلویی است که بالاتر معرفی کردیم.
- طرحواره خرپشته

جزئیات
نقشه جزئیات (Detail) برشهایی از عملیات ساختمانی لازم در نقشههای تاسیسات برقی است، که مصالح استفادهشده و نحوه اتصالات در آن نشان داده میشود. مهمترین جزئیات در نقشه سیم کشی برق، چاه ارت و نحوه عبور کابل است.
توضیحات
در نقشههایی که مرور کردیم، از حروف و شماره برای علایم و آدرسدهی استفاده میشود. نام نقشهها هم مشخص است. با این حال، یکسری موردها که در نقشهها قابل نشان دادن نیستند باید به صورت نوشتاری توضیح داده شوند.
مثلا در مجموعه نقشهها میتوان رنگ سیمها را مشخص کرد؛ همچنین، میتوان آن را پای نقشه توضیح داد. برخی نکات و مراحل سیم کشی که اهمیت بالایی دارند هم معمولا در توضیحات مجددا یادآوری میشوند.
تعیین خط تراز کلیدها و پریزها
پرجزئیاتترین مراحل سیم کشی را پشت سر گذاشتیم. از این مرحله به بعد کارها عملیتر و تا حدی سرراستتر میشوند. برقکار اینجا محل نصب کلیدها و پریزها و فاصله آنها از کف را به کمک خطوط تراز مشخص میکند. این مرحله مقدمه مرحله بعد و کندهکاری محل کلیدها، پریزها، جعبه تقسیمها و فیوز است.
این اندازهگیری (و در اصل ترازبندی) با شلنگ تراز انجام میشود. برای استفاده از این ابزار یک نفر اندازه اصلی را با شیلنگ نگه میدارد و دیگری به تعداد لازم اندازه میزند. در واقع او شیلنگ را بالا و پایین میکند تا سطح آب در دو سر آن یکسان شود.
نکته: هنگام استفاده از شیلنگ تراز فقط نفر انگشت خود را روی شیلنگ میگذارد تا آب خارج نشود. اگر هردو اینکار را انجام دهند، اندازهها تغییر میکنند.
به کمک این وسیله دوسر هر دیوار نشانهگذاری شده، و با ریسمان رنگی یک خط سراسری کشیده میشود. به این ترتیب اندازه دقیق فاصله پریزها از کف (ارتفاعشان) مشخص میشود. البته همانطور که اشاره کردیم، ابزار پیشرفتهتری هم برای اینکار وجود دارد: تراز لیزری، که سرعت و دقت کار را چندبرابر میکند.
مشخص کردن این فاصلهها اختیاری نیست و استانداردهای خاص خود را دارد. مهمترین اصول سیم کشی ساختمان در این مرحله، که مربوط به همین فواصل میشوند، عبارتاند از:
- ارتفاع کلیدهای ساختمانی (روشنایی، کولرها و ...): 110 تا 120 سانتیمتر
- ارتفاع پریزهای برق، تلفن و آنتن: 30 تا 40 سانتیمتر
- ارتفاع پنل و گوشی آیفون: 140 تا 150 سانتیمتر
- فاصله جعبه فیوز از لولههای گاز و آب: 1 متر
- فاصله آویز لامپها از سقف: 30 تا 50 سانتیمتر
- فاصله قوطیها از چارچوب ساختمان: 15 تا 25 سانتیمتر
جانمایی صحیح کلیدها و پریزها از مهمترین سنجههای مهارت یک متخصص برق کشی ساختمان است. خوب است بدانید که در بیشتر موارد، دریافت هزینههای به شدت پایین برای این پروژهها حتما (حداقل) خود را به شکل طرح غیر همتراز کلیدها و پریزها نشان میدهد.
شیارزنی و کندهکاری
پس از مشخص شدن فاصله کلیدها، پریزها و ... از کف و سایر رأسها، باید محلهایی که قرار است لولههای خرطومی و قوطیهای برق در آن در دیوار جای بگیرند را با عمق و عرض مناسب کندهکاری کرد، به عنوان مثال:
- عرض شیار باید متناسب با مجموع پهنای لولههایی باشد که بعدا در آن نصب میشود. البته برای نصب ساپورت در کنار لولهها معمولا عرض شیار یکی-دو سانتیمتر بیشتر در نظر گرفته میشود.
- هنگام کندهکاری نباید بیشتر از نصف ضخامت دیوار برداشته شود.
- عمق شیار به اندازهای باشد که لولهها حداقل ۱.۵ سانتیمتر زیر سطح نهایی دیوار قرار بگیرند (در اتاق خوابها و پذیرایی).
در گذشته اینکار به روش سنتی، و با استفاده از تیشههای برقکاری، چکش و قلم انجام میشد. اما به دلیل وجود ابزارهای مدرنتر، حالا بیشتر از دو روش دیگر در مراحل سیم کشی استفاده میشود:
- شیارزن: این دستگاه کاربردی در کندن محل جاگذاری لوله و قوطیها فوقالعاده دقیق عمل میکند. شیارزن در دو مدل تکتیغ و دوتیغ در باز موجود است. مدل دوتیغ قابل تنظیم است، و میتوان اندازهای خاص برای برش روی دیوار را به آن داد.
- بتنکن یا هیلتی: این دستگاه یک چکش برقی قوی و حساس است، که میتواند بتن و آجر را به راحتی بکند.
هرکدام از این دستگاهها در مدلها و اندازههای مختلف (با کارایی گوناگون) در بازار موجودند، و سرعت کار انواع سیم کشی ساختمان به روش توکار را به شدت افزایش میدهند.

قوطیگذاری
در ادامه گامهای آموزش سیم کشی ساختمان به مرحله قوطیگذاری میرسیم. وقتی کندهکاری تمام شود، باید قوطیهای کلید و پریز را روی دیوار در شیارهای ایجادشده نصب کرد. برای اینکار، قوطیها را باید با گچ در جای خود محکم کرد.
مهمترین نکتههای این مرحله همسطح بودن قوطیها با دیوار هنگام نصب (بدون کوچکترین بیرونزدگی) و همتراز بودنشان با خط تراز است. برای مطمئن شدن از این موضوع میتوان از ابزار تراز کمک گرفت، و قوطیها را به صورت عمودی و افقی بررسی کرد. فاصله هرقوطی تا قوطی بعد هم باید استاندارد باشد تا هنگام نصب مشکلی ایجاد نشود.
لولهگذاری
پس از قوطیگذاری، لولهها طبق نقشه در شیارهای ایجادشده قرار میگیرند، با زانویی یا خم زدن (حداکثر چهار خم 90 درجه) به لولههای کف متصل شده و تا زیر کلید و پریزها هدایت میشوند. در این مرحله باید به اندازه کافی برای تمام ورودیها و خروجیها لوله کار شود تا سیمهای برق، تلفن، آیفون، آنتن و ... جداگانه از داخل لولهها رد شوند.
لولههای برق از سیمها در برابر عوامل خارجی مانند ضربه، حرارت و ... محافظت کرده و سیمهای برق، تلفن و آنتن را به نقاط مختلف هدایت میکنند. تعداد و روش لولهگذاری بسته به نوع برق کشی و نقشه تاسیساتی متفاوت است. لولهها هم تنوع بسیار بالایی دارند (گالوانیزه، فلزی، پلاستیکی، PVC) و برقکار با توجه به عوامل گوناگون سراغ یک نمونه خاص میرود.
در حال حاضر بیشتر از لولههای پی وی سی و پلیکا 20 نسوز (خشک یا منعطف) در پروژهها استفاده میشود؛ قطر لولهها هم به ضخامت سیمها و تعداد رشتههای آنها بستگی دارد. حتما باید به این موضوع دقت شود تا موقع رد کردن سیمها از لولهها چالشی ایجاد نشود. ﻧﺴﺒﺖ ﻗﻄﺮ داخلی ﻟﻮﻟﻪ ﺑﻪ ﻗﻄﺮ دﺳﺘﻪ سیمها حداقل باید ۱.۳ باشد.
این لولهها استحکام خوبی دارند، منعطفاند و به عنوان عایق عالی هستند. مقاومت در برابر خوردگی، زنگزدگی و اشتعال هم از دیگر مزایای این لولههاست.
طبق اصول سیم کشی ساختمان، لولهگذاری در سقف هم انجامپذیر است، اما معمولا اقتصادیترین گزینه نیست. در چندحالت اما لولهگذاری کلید و پریز در کف ممنوع است:
- وقتی ساختمان در حال ساخت و فاقد نظارت مطلوب است؛ و احتمال میدهید لولههای کف آسیب ببینند.
- وقتی قرار نیست بلافاصله پس از لولهگذاری کفسازی انجام شود.
- وقتی قرار است طبقه بالا هم برق کشی شود.
- در مکانهایی که احتمال آبریزی وجود دارد، مانند آشپزخانه، حمام و سرویس بهداشتی (طبق مبحث 13 مقررات ملی ساختمان).

سیم کشی
همانطور که مقالات آموزش سیم کشی ساختمان یادآوری میکنند، پیش از آغاز این مرحله باید قوطی کلیدها و پریزها را از هرگونه آلودگی پاک کرد. لولههای اضافی را هم باید برش داد. در ادامه، سیمها با فنر سیم کشی از داخل لولهها عبور داده میشوند.
رنگ و اندازه سیمهایی که در این مرحله استفاده میشود باید کاملا استاندارد باشد؛ مثلا سیم زرد یا سبز ارت، سیم آبی نول و سیم دیگر فاز است. البته بعضی از ساختمانها سیم ارت ندارند. در این حالت تنها از سیمهای آبی و رنگ استفاده میشود. اندازه (شماره) سیمهای مناسب برای هربخش را هم بالاتر مرور کردیم.
این مرحله از برق کشی ساختمان شامل چندعملیات دیگر هم میشود، از جمله:
- کابلکشی از داخل جعبه فیوزها و رد کردن آنها از سینی کابل
- اتصالات سر سیمها داخل قوطی کلید، جعبه فیوزها، روشناییها، ماهواره و آنتن
- عایقکاری اتصالات با وارنیش حرارتی
سربندی (سیمبندی)
سیمبندی با هدف جلوگیری از مشکلاتی مانند اتصالی و قطعی برق در آینده انجام میشود و بسیار مهم است. در اصول سیم کشی ساختمان به روش جدید، پیش از سربندی باید کابلکشی برق جعبه فیوز و بست زدن، سینیگذاری و برق کشی تا محل کنتور انجام شود. در مرحله بعد هم تجهیزات الکتریکی نصب میشوند.
منظور از نصب تجهیزات الکتریکی چنین مواردی است:
- بستن کلیدها و پریزها
- نصب کلید کولر و تراز کردن آنها
- سربندی ترمینال برق
- نصب آیفون و سیستم تلفن
- نصب دتکتورهای دود و شستی آنها
- نصب سیستم اعلام حریق
- نصب آنتن مرکزی و سوئیچینگها
برای اینکه سربندی به شکلی بینقص انجام شود، ابتدا باید سرمنشاء سیمها را پیدا کرد. برای اینکار باید با اهممتر سر سیمها را لوپ کرد. خطها از سه سیم ارت (زرد)، فاز (قرمز) و نول (آبی) تشکیل شدهاند.
برای تشکیل جعبه تقسیم واحد یا جعبه فیوز، از هر سر خط سیمهای زرد جمع شده و با یک ترمینال به هم وصل میشوند. همین کار هم برای سیمهای آبی انجام میشود تا به ترمینال سیمهای نول تبدیل شوند. در صورت استفاده از کلید محافظ باید سیم نول اصلی را به ورودی فیوز، و خروجی نول فیوز را به باقی سیمهای نول وصل کرد.
سیمهای قرمز (فاز) مانند این دو سربندی نمیشوند. فاز ورودی باید به ورودی فیوز 25 آمپری وصل شود؛ از خروجی فیوز 25 آمپری به هرکدام از فیوزها هم یک انشعاب گفته میشود تا تغذیه به درستی کامل شود. در آخر سیمهای افشان فاز به خروجی هرکدام از فیوزها وصل میشوند.
نکته: ظرفیت فیوز برای کنتور ساختمان 25 آمپر، برای برای کولر گازی و فیوز اصلی ساختمان 20 آمپر، برای پریزها 16 آمپر و برای روشنایی 10 آمپر است.
پس از پایان مراحل سیم کشی، کارشناس تاسیسات، کابل و علامتگذاری سیمها را بررسی میکند تا ایرادات احتمالی برطرف شوند.

اصول سیم کشی ساختمان؛ اشتباهات رایج در برق کشی
مهمترین اصول سیم کشی ساختمان برای هرمرحله را کوتاه توضیح دادیم. در اینجا قصد داریم اشتباهات رایج اینکار را بررسی کنیم تا مطمئن شوید پروژه شما فاقد آنهاست:
- شلوغ کردن دیوارها و قوطیگذاریهای بیهدف
- استفاده از سیمهای قدیمی یا معیوب، قوطیها و لولههای شکسته (و استفاده نکردن از لوازم و لوله برق استاندارد مانند لنت و بوشهای مخصوص در صورت طولانی بودن مسیر لولهها)
- عبور دادن چندسیم با کارکرد مختلف از درون یک لوله
- استفاده نکردن از لنتها و چسبهای مخصوص در محل اتصالات و زانوها
- بدون پوشش گذاشتن جعبههای تقسیم در سیم کشی ساختمان
- اتصال سیمهای برق خارج از جعبه برق
- ازدحام سیمها در جعبه پریز یا برق که باعث افزایش حرارت و احتمال آتشسوزی میشود
- استفاده از سیمهال رابط با مقطع پایین
- استفاده از لولهبر به جای استفاده از اره و صاف نکردن ﻟﺒﻪﻫﺎی ﺗﻴﺰ ﻣﺤﻞ ﺑﺮش
- ﺗﻐﻴﻴﺮ جنس ﻟﻮﻟﻪ (مثلا فولادی به پلاستیکی) ﺑﺪون نصب ﺟﻌﺒﻪای در ﻣﺤﻞ
- ﭘﻴﭽﻴﺪن ﺳﻴمها دور ﻫﻢ ﺑﺮای اﻳﺠﺎد اﺗﺼﺎل اﻟﻜﺘﺮﻳکی و پوشاندن آنها با نوار چسب
- نصب جعبههای برقی روی دیوار یا نزدیکِ مواد اشتعالزا
- انتخاب اشتباه مدار قطعکننده (حالت درست: قطعکنندههای استاندارد برای لوازم بزرگ و سنگین، مدار خطای زمین برای لوازم خانگی و محیطهای مرطوب مانند حمام، قطعکننده مدار خطای جرقه برای محیطهای مسکونی و اداری)
- اجرای سیم کشی ساختمان بدون بست و گیره

سیم کشی برق ساختمانتان را تنها به بهترینها بسپارید
امیدواریم با مطالعه این راهنمای مفصل با مراحل، اصول و ریزهکاریهای برق کشی ساختمان بهتر آشنا شده باشید.
ما هم با شما همعقیدهایم که افراد با مطالعه مقالات و دیدی فیلمهای آموزش سیم کشی ساختمان تبدیل به یک برقکار ماهر و قابل اطمینان نمیشوند. مخصوصا این حوزه که کوچکترین اشتباه در آن منجر به خسارات مالی و حتی جانیِ جدی میشود.
برای دسترسی به افراد آموزشدیده و باتجربههای این حوزه در شهرتان، درخواستتان برای انواع سیم کشی ساختمان را در اپ یا وبسایت «خدمت از ما» ثبت کنید؛ هزینهها را مقایسه کنید؛ مدارک و سوابق هر برقکار را ببینید؛ نظرات و امتیازها را بسنجید و بهترین شخص را استخدام کنید.
راهنمای استفاده امن از “خدمت از ما”